鹿島定禅寺ビル 3階
定禅寺通り沿い、県庁・市役所至近!貸室は無柱スペース、OAフロアー採用により自由なレイアウトが可能となっております。
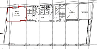
- 賃料/坪単価
- 90万900円 /
1.65万円
- 坪数/面積
- 54.60坪 /
180.49㎡
- 所在階
- 3階
- 管理費・共益費
- -
- 敷金
- 12ヶ月
- 礼金
- 0ヶ月
初期費用シミュレーションこの物件を借りた場合の初期費用の一例です。
- 賃料
- 管理費・共益費
- 敷金:
- 礼金
- 前家賃(日割り) ※1
-
- 前家賃(日割り)
- 仲介手数料 ※2
- その他費用
- 合計
※1. 1か月を30日として計算しています。
※2. 仲介手数料は仮の価格となりますので、実際の価格に関してはお気軽にお問い合わせ下さい。
担当者のコメント 芳賀勝也

- 官公庁が集まる勾当台公園駅より徒歩2分の好立地。眼前には勾当台公園があり、緑豊かなエリアとなります。屋上にはテラスがあり従業員様にお使い頂けますので、休憩時などリフレッシュに利用できます。貸室は無柱、OAフロアで自由なレイアウトが可能です!
ポイント・特徴
物件概要
【事務所】 物件番号:95776493 情報更新日:2026年01月17日 次回更新予定日:2026年01月26日| 所在地 | 宮城県仙台市青葉区本町2丁目18-21 | ||
|---|---|---|---|
| 交通 | |||
| 賃料/坪単価 | 90.09万円/1.65万円 | 坪数(面積) | 54.60坪(180.49㎡) |
| 管理費・共益費 | - | 敷金/礼金/保証金 | 12ヶ月/0ヶ月/- |
| 償却/敷引 | -/- | 更新料 | - |
| 権利金/雑費 | -/- | ||
| 造作譲渡金 | - | 駐車場/月額料金 | -/33,000円 (税込) |
| 保険加入/料金 | 有/- | 保険名/保険期間 | -/- |
| 保証人代行義務 | - | 保証会社 | - |
| 保証会社詳細 | - | 向き | - |
| 築年月(築年数) | 1989年 8月 (築36年) | 契約期間 | 定期借家 3年 |
| 種別/構造 | 事務所/鉄骨鉄筋コンクリート | 部屋/所在階/階建 | 3階/3階/8階建 地下1階 |
| 総戸数 | - | 現況/引渡時期 | 賃貸中/2025年11月上旬予定 |
| 取引態様 | 一般媒介 | 用途地域 | 商業 |
| 物件番号 | 95776493 | 取引条件の有効期限 | 2026年01月26日 |
| 設備条件 |
|
||
| 備考 |
契約期間:定期借家3~5年 共益費:賃料に含む 駐車場:空き要確認 ※内覧をご希望の際は、事前にご希望の日時をご連絡ください。(内覧:平日のみ) |
||
| 取扱会社 |
|
||
※地図上に表示される物件の位置は付近住所に所在することを表すものであり、実際の物件所在地とは異なる場合がございます。


























